Berkeley Terrace, York - Offers Over £325,000 - Freehold

Located in the popular residential area of Holgate, positioned to the west of York, this beautifully presented period terrace home offers a wealth of original features alongside generous accommodation throughout. Within walking distance of York city centre, the train station, and the wide range of amenities available in nearby Acomb, the property makes an ideal first purchase and is ready to move into.

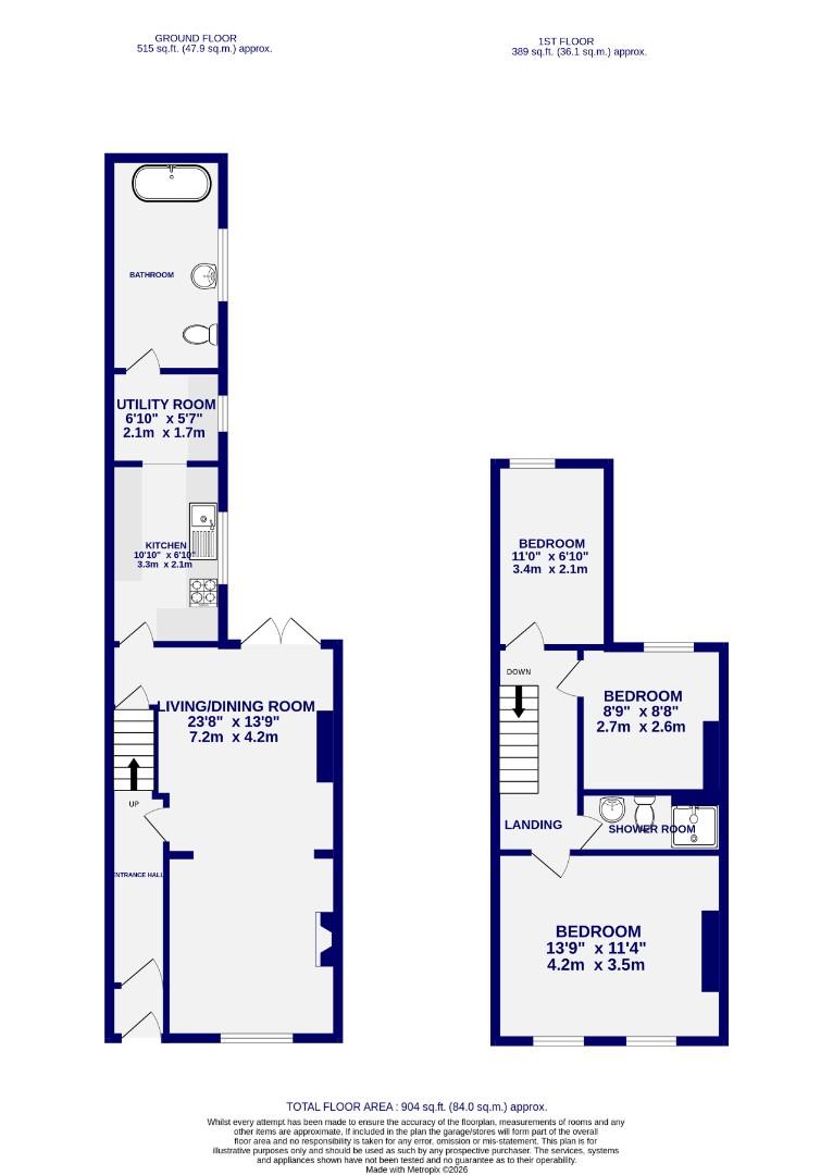
Internally, the accommodation begins with an entrance hall leading into a bright and spacious through reception room, with windows to both the front and rear allowing natural light to flood the space. This room beautifully showcases a number of character features, including ceiling coving, chimney breasts, and traditional detailing. To the rear is a fitted kitchen comprising a range of wall and base units, providing ample storage and worktop space, with the added benefit of a well-appointed ground floor bathroom positioned beyond.

To the first floor are three well-proportioned bedrooms, with the principal bedroom situated to the front and benefitting from twin windows that enhance the sense of light and space. The spacious landing also provides access to a modern three-piece shower room.

Externally, the property features an enclosed rear courtyard, accessed via a shared alleyway. Enjoying a westerly aspect, the courtyard is bordered by traditional brick walls, creating a private and low-maintenance outdoor space. To the front is a forecourt setting, with ample on-street parking available as the road is not permit restricted.

Offered in excellent condition and situated in a highly convenient location, this property is expected to attract strong interest, and early viewing is highly recommended.

ANTI-MONEY LAUNDERING COMPLIANCE

We are legally required to conduct Anti Money Laundering checks on all purchasers, sellers, and giftors. These checks become mandatory when a seller accepts a purchaser's offer on a property. Anti-Money Laundering checks are valid for 6 months from the date they are completed. If your purchase does not proceed and you make an offer on another property more than 6 months later, or if your checks are more than 6 months old when making a new offer, you will need to complete and pay for new checks. We use a partner supplier MoveButler, to carry out these checks on our behalf. They will contact you directly once your offer has been accepted (subject to contract) to complete the electronic verification process securely. There is a non-refundable charge of £30 + VAT per purchaser and per giftor for these checks.. This fee must be paid before we can issue a memorandum of sale to solicitors and is non-refundable under any circumstances. Ashtons receive a portion of this fee from MoveButler as compensation for facilitating these checks and our administrative role in the compliance process.

Mid Terrace House
Three Bedrooms
Two Bathrooms
Sought After Residential Area
Beautifully Presented Throughout
Enclosed Courtyard
Ideal First Home
EPC - D

3 Bedrooms   |   2 Bathrooms   |   1 Reception

York Branch

For further details on this property please call our York office on
01904 659 222
Monday-Friday 9am - 5:30pm / Saturday 9am - 4pm / Sunday - 10am - 1pm (phone lines only)

Floorplans For Berkeley Terrace, York Floorplans For Berkeley Terrace, York

Book a viewing or enquire about this property

Simply fill out the form below or call us on:

01904 659 222 for York | 01904 799 333 for Acomb

* Mandatory fields

Recently viewed properties

Rightmove Zoopla On The Market Primelocation The Property Ombudsman The Association of Residential Letting Agents National Association of Estate Agents safeagent