St. Olaves Road, York - £625,000 - Freehold

**PROPERTY SOLD OFF MARKET**

A beautifully presented four-bedroom home, ideally located just a four-minute walk from St. Peter’s School and eight minutes from York Minster, this exceptional property has been thoughtfully transformed under the guidance of a professional interior designer, with meticulous attention to detail throughout.

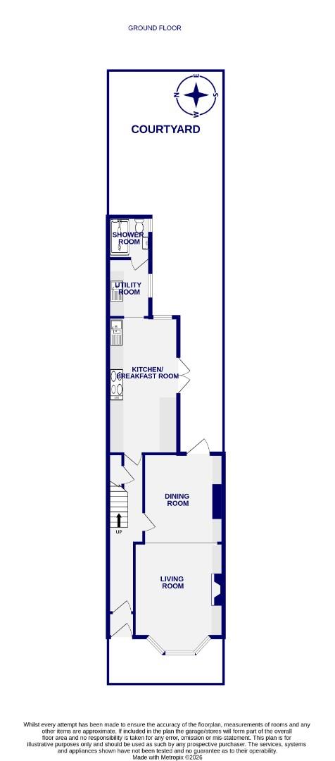
The welcoming hallway retains its original Victorian tiled flooring and elegant wooden banister, along with a practical understairs storage cupboard. The lounge and dining area have been seamlessly opened into one impressive space, perfect for entertaining, featuring a wood-burning stove set within a marble fireplace, bespoke fitted wooden cabinetry with granite tops, and patio doors leading out to the garden.

The kitchen, utility, and wet room benefit from underfloor heating and Amtico flooring throughout. The bespoke solid oak kitchen can be repainted to suit personal taste and is complemented by integrated ceiling speakers and a Sonos sound system. A charming banquette seating area provides an ideal spot for relaxed breakfasts, while high-spec appliances include a Bora induction hob with integrated extraction, a Neff oven and combination microwave, and a Miele integrated dishwasher. Double patio doors open onto the garden, and the adjoining utility room offers a separate sink and space for a tumble dryer, washing machine, and wine fridge. A convenient ground floor wet room includes a walk-in shower, WC, and basin.

Upstairs, the first floor offers three generous double bedrooms, all with integrated or fitted wardrobes, while the loft conversion provides a fourth double bedroom with useful eaves storage. The family bathroom is styled as a wet room, featuring both a freestanding bath and walk-in shower, alongside a separate WC.

Externally, the property boasts a well-proportioned garden—one of only four of this size on the road—designed for outdoor living, with a stylish patio seating area for six, a dining space, and a BBQ area, ideal for entertaining in warmer months. The garden is beautifully landscaped with mature roses, fruit trees, and established shrubs. Off-street parking is available via permit.

ANTI-MONEY LAUNDERING COMPLIANCE

We are legally required to conduct Anti Money Laundering checks on all purchasers, sellers, and giftors. These checks become mandatory when a seller accepts a purchaser's offer on a property. Anti-Money Laundering checks are valid for 6 months from the date they are completed. If your purchase does not proceed and you make an offer on another property more than 6 months later, or if your checks are more than 6 months old when making a new offer, you will need to complete and pay for new checks. We use a partner supplier MoveButler, to carry out these checks on our behalf. They will contact you directly once your offer has been accepted (subject to contract) to complete the electronic verification process securely. There is a non-refundable charge of £30 + VAT per purchaser and per giftor for these checks.. This fee must be paid before we can issue a memorandum of sale to solicitors and is non-refundable under any circumstances. Ashtons receive a portion of this fee from MoveButler as compensation for facilitating these checks and our administrative role in the compliance process.

Popular Location Off Bootham
Great Schools Nearby
Offered With No Onward Chain
Modernised Throughout
High-End Appliances
On-Street Permit Parking
Landscaped Outdoor Space
EPC - TBC

4 Bedrooms   |   2 Bathrooms   |   2 Receptions

York Branch

For further details on this property please call our York office on
01904 659 222
Monday-Friday 9am - 5:30pm / Saturday 9am - 4pm / Sunday - 10am - 1pm (phone lines only)

Floorplans For St. Olaves Road, York Floorplans For St. Olaves Road, York

Book a viewing or enquire about this property

Simply fill out the form below or call us on:

01904 659 222 for York | 01904 799 333 for Acomb

* Mandatory fields

Recently viewed properties

Rightmove Zoopla On The Market Primelocation The Property Ombudsman The Association of Residential Letting Agents National Association of Estate Agents safeagent