Baker Street, Burton Stone Lane, York - £250,000 - Freehold

Located in the popular residential area of Burton Stone Lane, just north of York city centre and within walking distance of the city walls, train station and York Hospital, is this beautifully presented two-bedroom Victorian terrace home.

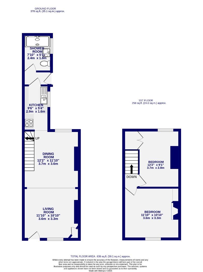
Making a wonderful first purchase and immaculately presented throughout, this property is expected to be popular and should not be missed. Internally, the property offers a spacious, light and airy reception area with windows to both the front and rear, allowing natural light to flood in. Hard flooring runs throughout, complemented by useful storage solutions, including a bespoke under-stairs cabinet, thoughtfully designed to maximise space.

To the rear is the fitted kitchen, comprising a range of wall and base units providing ample storage and worktop space, along with a newly installed and beautifully presented three-piece shower room.

On the first floor are two double bedrooms, with the principal bedroom positioned to the front of the property, retaining its original fireplace and a charming Victorian cupboard.

Externally, the property benefits from a west-facing courtyard to the rear, designed for low maintenance and offering sufficient space for outdoor seating. On-street, non-permit parking is available nearby.

Sure to be popular on the open market, early viewing is highly recommended.

A TWO BEDROOM TERRACED HOME OFFERED WITH NO ONWARD CHAIN

ANTI-MONEY LAUNDERING COMPLIANCE

We are legally required to conduct Anti Money Laundering checks on all purchasers, sellers, and giftors. These checks become mandatory when a seller accepts a purchaser's offer on a property. Anti-Money Laundering checks are valid for 6 months from the date they are completed. If your purchase does not proceed and you make an offer on another property more than 6 months later, or if your checks are more than 6 months old when making a new offer, you will need to complete and pay for new checks. We use a partner supplier MoveButler, to carry out these checks on our behalf. They will contact you directly once your offer has been accepted (subject to contract) to complete the electronic verification process securely. There is a non-refundable charge of £30 + VAT per purchaser and per giftor for these checks.. This fee must be paid before we can issue a memorandum of sale to solicitors and is non-refundable under any circumstances. Ashtons receive a portion of this fee from MoveButler as compensation for facilitating these checks and our administrative role in the compliance process.

Stunning Period Terrace House
Two Double Bedrooms
Through Reception Room
Immaculately Presented Throughout
Courtyard Garden
Close To CC, Train Station & Hospital
Ideal First Home
EPC D

2 Bedrooms   |   1 Bathroom   |   2 Receptions

York Branch

For further details on this property please call our York office on
01904 659 222
Monday-Friday 9am - 5:30pm / Saturday 9am - 4pm / Sunday - 10am - 1pm (phone lines only)

Floorplans For Baker Street, Burton Stone Lane, York Floorplans For Baker Street, Burton Stone Lane, York

Book a viewing or enquire about this property

Simply fill out the form below or call us on:

01904 659 222 for York | 01904 799 333 for Acomb

* Mandatory fields

Recently viewed properties

Rightmove Zoopla On The Market Primelocation The Property Ombudsman The Association of Residential Letting Agents National Association of Estate Agents safeagent