Chatsworth Terrace, York - £260,000 - Freehold

Ideally suited to the first time buyer, this superbly presented two bedroom end terrace home has been comprehensively updated in recent years to create a stylish, low maintenance property within easy reach of York city centre.

The property has benefited from a full rewire, replastering and redecoration throughout, along with a newly tiled entrance hall and the added reassurance of a security alarm system. Gas central heating is installed, ensuring a comfortable and efficient living environment.

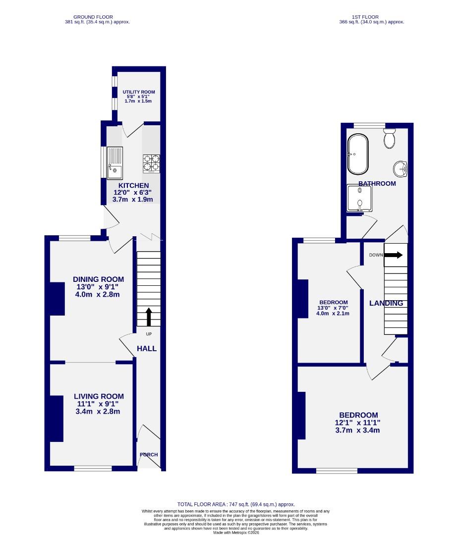
The accommodation begins with an entrance hall which opens into a generous open plan living and dining room. To the front is a lounge area with feature fireplace, while to the rear the dining space overlooks the courtyard garden. The modern kitchen is fitted with Shaker style units in cream, complemented by dark composite worktops and a range of integrated appliances, with a separate utility room beyond.

To the first floor is a galleried landing leading to two well proportioned bedrooms and a spacious family bathroom, fitted with a contemporary suite and benefitting from a separate shower cubicle.

Externally, the property offers a rear paved yard enjoying a south east facing aspect, providing a pleasant outdoor space. There is a useful rear lean to along with a separate external store, offering practical storage and additional covered space.

An excellent opportunity to acquire a beautifully presented home in a popular and convenient York location.

Council Tax Band B

ANTI-MONEY LAUNDERING COMPLIANCE
We are legally required to conduct Anti Money Laundering checks on all purchasers, sellers, and giftors. These checks become mandatory when a seller accepts a purchaser's offer on a property. Anti-Money Laundering checks are valid for 6 months from the date they are completed. If your purchase does not proceed and you make an offer on another property more than 6 months later, or if your checks are more than 6 months old when making a new offer, you will need to complete and pay for new checks. We use a partner supplier MoveButler, to carry out these checks on our behalf. They will contact you directly once your offer has been accepted (subject to contract) to complete the electronic verification process securely. There is a non-refundable charge of £30 + VAT per purchaser and per giftor for these checks.. This fee must be paid before we can issue a memorandum of sale to solicitors and is non-refundable under any circumstances. Ashtons receive a portion of this fee from MoveButler as compensation for facilitating these checks and our administrative role in the compliance process.

End Terrace House
Period Charm
Two Double Bedrooms
Large Modern First Floor Bathroom
Modern Rear Kitchen With Utility
Open Plan Living/ Dining Room
Recently Rewired
EPC D

2 Bedrooms   |   1 Bathroom   |   2 Receptions

York Branch

For further details on this property please call our York office on
01904 659 222
Monday-Friday 9am - 5:30pm / Saturday 9am - 4pm / Sunday - 10am - 1pm (phone lines only)

Floorplans For Chatsworth Terrace, York Floorplans For Chatsworth Terrace, York

Book a viewing or enquire about this property

Simply fill out the form below or call us on:

01904 659 222 for York | 01904 799 333 for Acomb

* Mandatory fields

Recently viewed properties

Rightmove Zoopla On The Market Primelocation The Property Ombudsman The Association of Residential Letting Agents National Association of Estate Agents safeagent