Heslington Croft, Fulford, York - £425,000 - Freehold

Located in the sought after residential area of Fulford, positioned to the south of York is this updated and extended two bedroom semi detached bungalow offering a landscaped garden, ample driveway parking and detached garage. Fulford is ideally placed for regular bus connections to the city centre and easy access to York Designer Outlet as well as the outer ring road for travel further afield. This well maintained home is ready to move into as is sure to appeal to a variety of potential buyers.

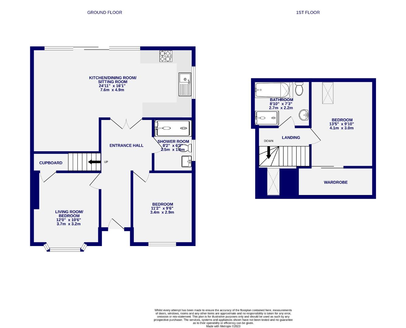
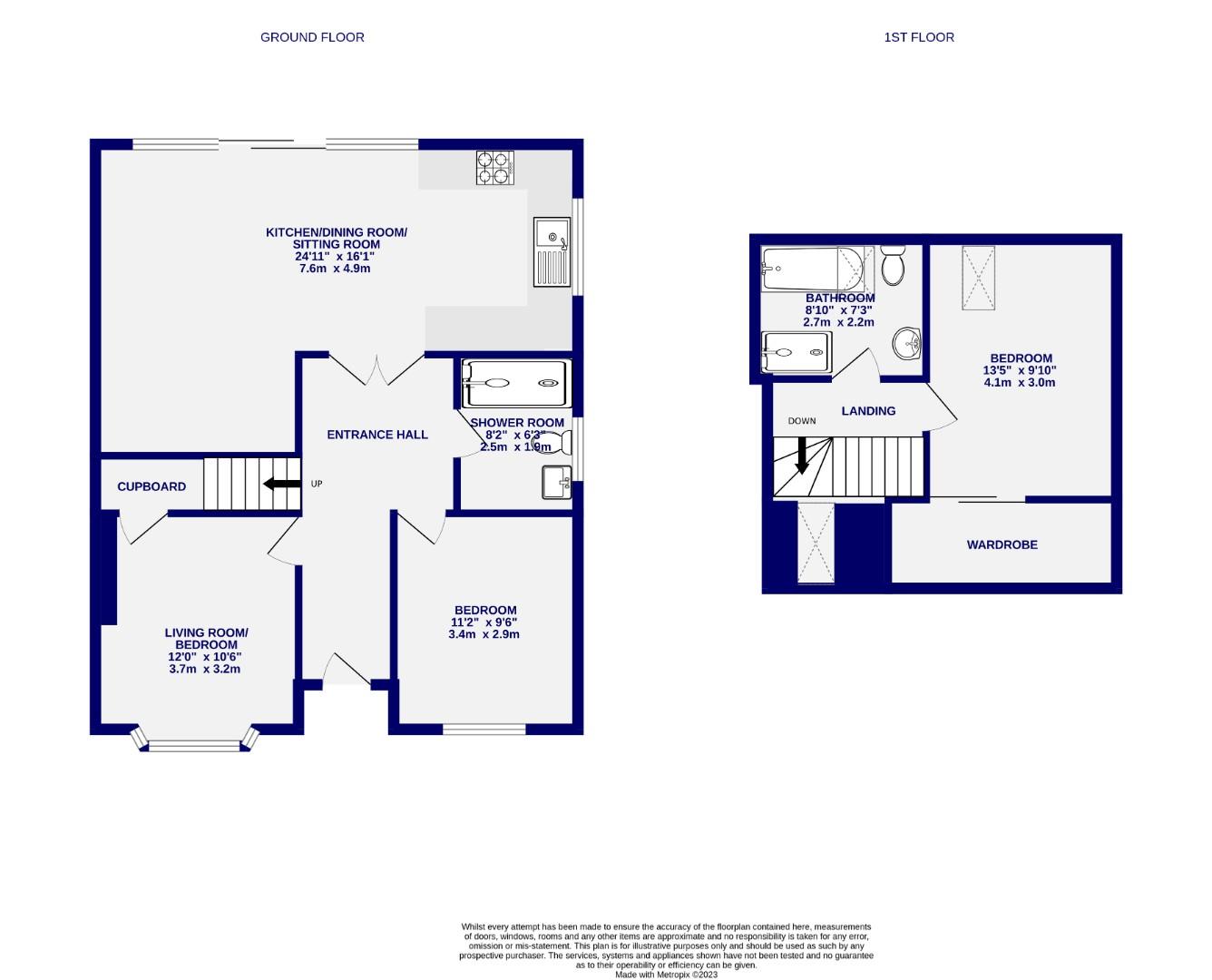
Internally the property comprises a spacious entrance hallway with the cosy living room accessed to the left. An open plan kitchen living diner with bi folding doors is located to the rear. Often bathed in natural light throughout the day, this room also offers plenty of storage by way of wall and base kitchen units that house integrated appliances. A double bedroom is positioned to the front of the property, with the modern shower room completing the ground floor accommodation.

The first floor offers a landing, double bedroom and shower ensuite, as well as storage space.

Externally is a immaculately presented rear garden with fence boundaries. Mainly laid to lawn, this space also offers a patio area immediately in front of the bi folding doors. To the front of the property is a generous driveway allowing parking for multiple vehicles along with a single garage with power.

Sure to be popular due to position and level of finish, viewing is highly recommended.

Council Tax Band C.

Semi Detached Bungalow
Two Double Bedrooms
Two Bathrooms
Open Plan Kitchen Diner
Bi Fold Doors
Landscaped Garden
Garage & Driveway
Epc D

3 Bedrooms   |   2 Bathrooms   |   1 Reception

York Branch

For further details on this property please call our York office on
01904 659 222
Monday-Friday 9am - 5:30pm / Saturday 9am - 4pm / Sunday - 10am - 1pm (phone lines only)

Floorplans For Heslington Croft, Fulford, York Floorplans For Heslington Croft, Fulford, York

Book a viewing or enquire about this property

Simply fill out the form below or call us on:

01904 659 222 for York | 01904 799 333 for Acomb

* Mandatory fields

Recently viewed properties

Rightmove Zoopla On The Market Primelocation The Property Ombudsman The Association of Residential Letting Agents National Association of Estate Agents safeagent