Stamford Street East, Leeman Road - No Onward Chain £145,000 - Leasehold With Share Of Freehold

Situated within walking distance of York city centre and the train station, this beautifully modernised ground floor apartment offers a stylish and characterful home, ideal for first-time buyers, professionals or investors. Offered to the market with no onward chain, the property forms part of a charming converted building and has been thoughtfully updated throughout.

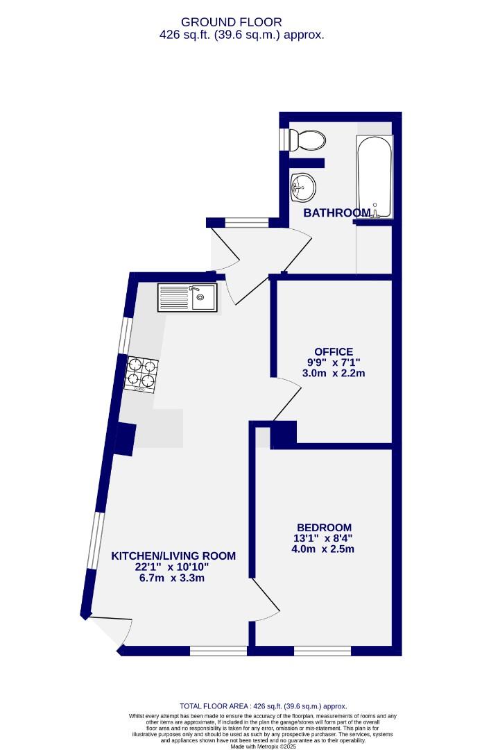
The heart of the apartment is the bright open plan living kitchen, featuring a newly fitted kitchen with integrated appliances and providing a welcoming space for cooking, dining and relaxing. The accommodation also includes a generous double bedroom, a modern three-piece bathroom with a washer/dryer cupboard, and a separate study or home office, offering flexibility for those working from home. To the rear, the apartment benefits from its own access, adding to the sense of privacy and convenience.

The location is a real highlight, with York city centre and railway station close at hand, excellent transport links, and on-street parking available without the need for a permit. A range of local amenities can be found nearby, along with attractive riverside walks that provide an easy and scenic route into the city.

Well presented throughout and ready to move into, this self-contained ground floor apartment represents a fantastic opportunity to secure a distinctive home in one of York’s most convenient and sought-after locations.

Leasehold
Length of lease- 999 years from 27 September 2013
Ground rent - £0
Service Charges : £0 - 50% contribution to Buildings Insurance - £196.48 (2025/26)
Freehold will be transferred equally to purchasers

Council Tax Band- A

ANTI-MONEY LAUNDERING COMPLIANCE

We are legally required to conduct Anti Money Laundering checks on all purchasers and sellers. These checks become mandatory when a seller accepts a purchaser's offer on a property. Anti-Money Laundering checks are valid for 6 months from the date they are completed. If your purchase does not proceed and you make an offer on another property more than 6 months later, or if your checks are more than 6 months old when making a new offer, you will need to complete and pay for new checks. We use a partner supplier MoveButler, to carry out these checks on our behalf. They will contact you directly once your offer has been accepted (subject to contract) to complete the electronic verification process securely. There is a non-refundable charge of £30 + VAT per purchaser for these checks. This fee must be paid before we can issue a memorandum of sale to solicitors and is non-refundable under any circumstances. Ashtons receive a portion of this fee from Movebutler as compensation for facilitating these checks and our administrative role in the compliance process.

Ground Floor Apartment
Modernised Throughout
One Double Bedroom
Three Piece Bathroom
Popular Residential Area
Ideal First Home
Offered No Onward Chain
EPC - E

1 Bedroom   |   1 Bathroom   |   1 Reception

York Branch

For further details on this property please call our York office on
01904 659 222
Monday-Friday 9am - 5:30pm / Saturday 9am - 4pm / Sunday - 10am - 1pm (phone lines only)

Floorplans For Stamford Street East, Leeman Road

Book a viewing or enquire about this property

Simply fill out the form below or call us on:

01904 659 222 for York | 01904 799 333 for Acomb

* Mandatory fields

Recently viewed properties

Rightmove Zoopla On The Market Primelocation The Property Ombudsman The Association of Residential Letting Agents National Association of Estate Agents safeagent