Railway View, York - £190,000 - Freehold

Located in the ever-popular residential area of Dringhouses, to the south of York, this charming Victorian terrace offers wonderful potential for buyers looking to create a home of their own. Offered with no onward chain, the property provides fantastic scope for further renovation and development.

Railway View is a peaceful and pretty street, well placed for access to York City Centre and the nearby amenities, with pleasant local walks and green spaces close by.

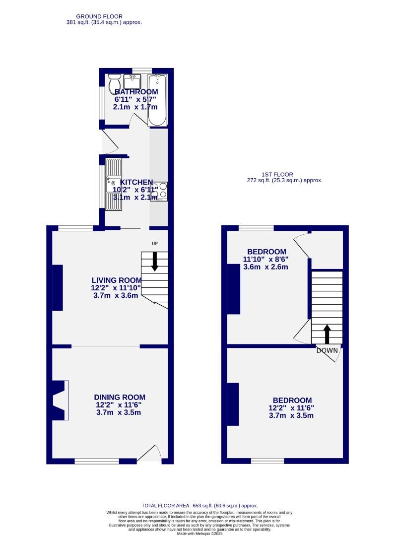
The accommodation comprises two reception rooms and a fitted kitchen to the rear, along with a ground floor bathroom. To the first floor are two well-proportioned double bedrooms.

Set on a larger-than-average plot for properties of this style, the garden provides plenty of outdoor space, including a lawned area enclosed by fencing, and a pathway leading to a garage positioned to the rear, offering further potential for storage or conversion, subject to consents.

A property full of character and opportunity, viewing is highly recommended.

Council Tax Band B

ANTI-MONEY LAUNDERING COMPLIANCE
We are legally required to conduct Anti Money Laundering checks on all purchasers, sellers, and giftors. These checks become mandatory when a seller accepts a purchaser's offer on a property. Anti-Money Laundering checks are valid for 6 months from the date they are completed. If your purchase does not proceed and you make an offer on another property more than 6 months later, or if your checks are more than 6 months old when making a new offer, you will need to complete and pay for new checks. We use a partner supplier MoveButler, to carry out these checks on our behalf. They will contact you directly once your offer has been accepted (subject to contract) to complete the electronic verification process securely. There is a non-refundable charge of £30 + VAT per purchaser and per giftor for these checks.. This fee must be paid before we can issue a memorandum of sale to solicitors and is non-refundable under any circumstances. Ashtons receive a portion of this fee from MoveButler as compensation for facilitating these checks and our administrative role in the compliance process.

Victorian Terrace Property
Two Double Bedrooms
Generous Garden
Garage
Popular Residential Area
Close To Nearby Green Spaces
No Onward Chain
EPC F

2 Bedrooms   |   1 Bathroom   |   2 Receptions

York Branch

For further details on this property please call our York office on
01904 659 222
Monday-Friday 9am - 5:30pm / Saturday 9am - 4pm / Sunday - 10am - 1pm (phone lines only)

Floorplans For Railway View, York Floorplans For Railway View, York

Book a viewing or enquire about this property

Simply fill out the form below or call us on:

01904 659 222 for York | 01904 799 333 for Acomb

* Mandatory fields

Recently viewed properties

Rightmove Zoopla On The Market Primelocation The Property Ombudsman The Association of Residential Letting Agents National Association of Estate Agents safeagent