Castlegate, York - £650,000 - Freehold

Set in the very heart of York’s historic city centre is this stunning period townhouse, recently the subject of a comprehensive scheme of refurbishment and modernisation. Finished to the highest of standards throughout, the property offers an exceptional blend of original character and contemporary style, together with a rare versatility that will appeal to a wide range of purchasers.

Castlegate is one of York’s most recognisable streets, with Clifford’s Tower at the end of the road, Coppergate Square directly opposite, and St Mary’s Church and the Jorvik Viking Centre close by. The location provides unrivalled access to the city’s attractions, shops, restaurants and cultural landmarks.

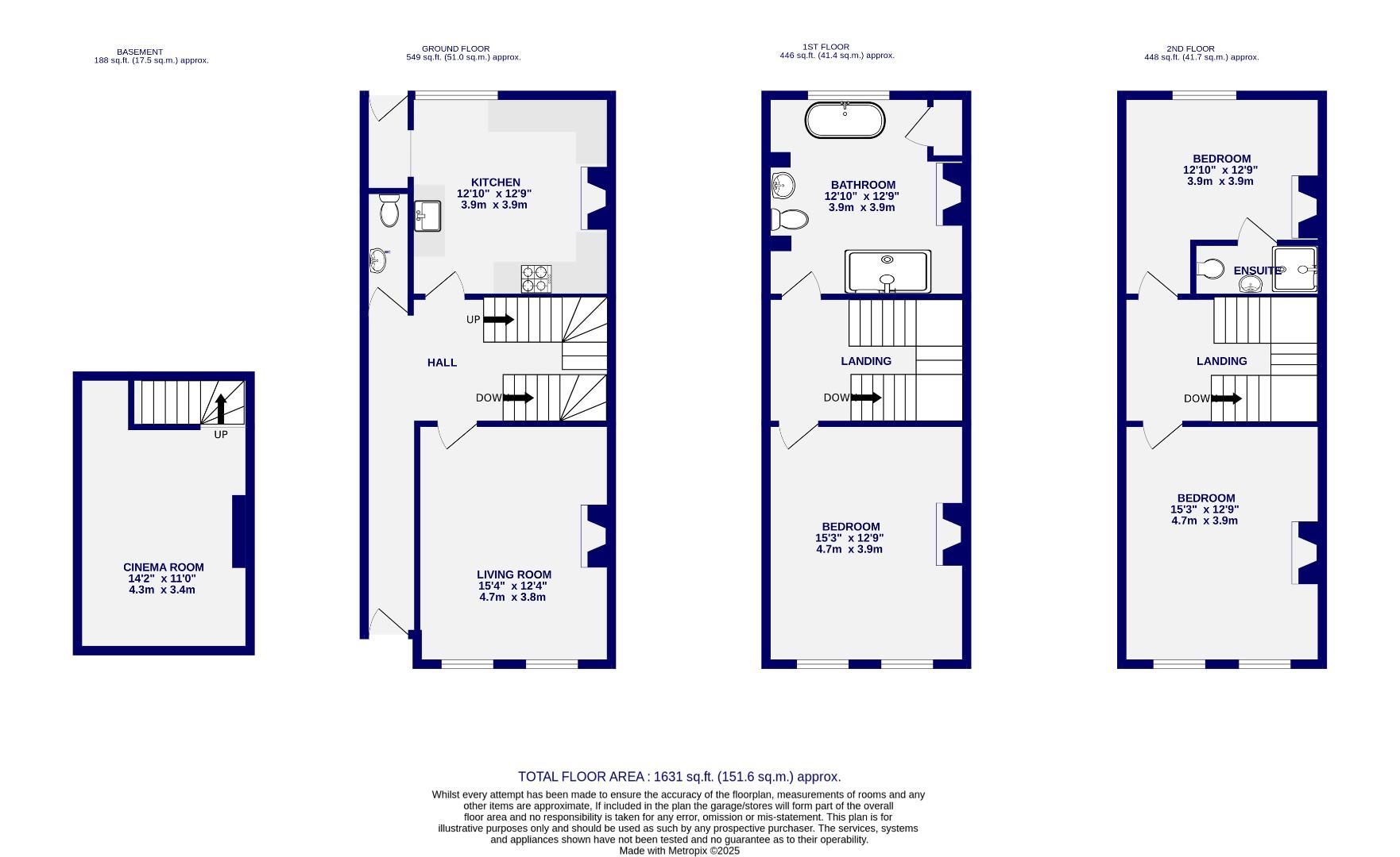
Arranged over four floors, the accommodation is both spacious and beautifully balanced. The ground floor opens with a stone flagged reception hall leading through to a charming living room and a luxury dining kitchen. A rear lobby and cloakroom complete this level. To the first floor is a generous bathroom and one of three double bedrooms, with two further doubles set across the upper floor. The basement has been converted to provide a superb cinema room, adding a unique dimension to the home.

Sympathetically refurbished to highlight period features while introducing modern touches, the property is offered in excellent order throughout with the benefit of gas central heating.

A rare opportunity to acquire a home of such quality and character in this sought after central setting, ideal as a main residence, weekend retreat or investment.

Council Tax Band F

Stone Flagged Reception Hall -- Living Room -- Luxury Dining Kitchen -- Rear Lobby -- Cloakroom -- Large First Floor Bathroom -- 3 Double Bedrooms -- Basement Cinema Room -- -- Gas Central Heating -- Excellent Order Throughout

ANTI-MONEY LAUNDERING COMPLIANCE

We are legally required to conduct Anti Money Laundering checks on all purchasers and sellers. These checks become mandatory when a seller accepts a purchaser's offer on a property. Anti-Money Laundering checks are valid for 6 months from the date they are completed. If your purchase does not proceed and you make an offer on another property more than 6 months later, or if your checks are more than 6 months old when making a new offer, you will need to complete and pay for new checks. We use a partner supplier MoveButler, to carry out these checks on our behalf. They will contact you directly once your offer has been accepted (subject to contract) to complete the electronic verification process securely. There is a non-refundable charge of £30 + VAT per purchaser for these checks. This fee must be paid before we can issue a memorandum of sale to solicitors and is non-refundable under any circumstances. Ashtons receive a portion of this fee from Movebutler as compensation for facilitating these checks and our administrative role in the compliance process.

Large Period Townhouse
Three Double Bedrooms
Luxury Kitchen & Bathroom
Basement Cinema Room
Prime Central Location
Extensive Refurbishment
EPC - Exempt

3 Bedrooms   |   2 Bathrooms   |   2 Receptions

York Branch

For further details on this property please call our York office on
01904 659 222
Monday-Friday 9am - 5:30pm / Saturday 9am - 4pm / Sunday - 10am - 1pm (phone lines only)

Floorplans For Castlegate, York

Book a viewing or enquire about this property

Simply fill out the form below or call us on:

01904 659 222 for York | 01904 799 333 for Acomb

* Mandatory fields

Recently viewed properties

Rightmove Zoopla On The Market Primelocation The Property Ombudsman The Association of Residential Letting Agents National Association of Estate Agents safeagent