Ouse Lea, Shipton Road, York - Offers Over £180,000 - Leasehold With Share Of Freehold

Offered with no onward chain, this spacious one-bedroom ground floor apartment is set within the sought-after Ouse Lea development, ideally positioned within walking distance of Homestead Park, riverside walks along the Ouse, and easy commuter access to York city centre.

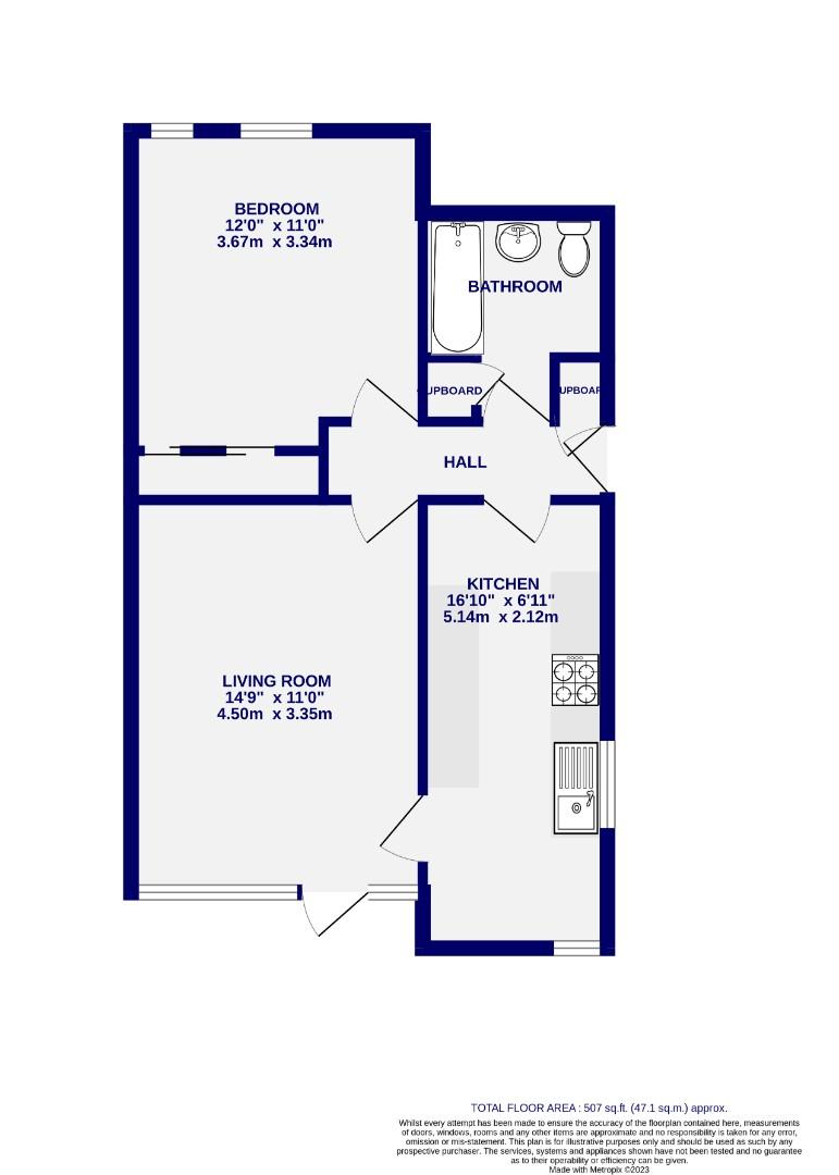
The accommodation includes an entrance hallway leading into a bright and generous living room. Floor-to-ceiling windows and doors flood the space with natural light thanks to its desirable south-facing position. Adjacent is a well-proportioned kitchen offering ample storage and space for dining.

The double bedroom benefits from built-in wardrobes, and a three-piece bathroom sits across the hall, along with an additional storage cupboard for convenience.

Externally, a private patio area offers a lovely spot to enjoy the warmer months, while the property also benefits from allocated parking in the secure underground car park, as well as a separate storage cupboard.

The vendor has recently purchased a share of the freehold, offering added long-term value and ownership benefits.

An ideal home or investment in a prime location—early viewing is highly recommended.

Share of Freehold
998 years remaining
Ground rent : Nil
Service charge: £1,445.28 per annum

Council Tax Band A

ANTI-MONEY LAUNDERING COMPLIANCE
We are legally required to conduct Anti Money Laundering checks on all purchasers, sellers, and giftors. These checks become mandatory when a seller accepts a purchaser's offer on a property. Anti-Money Laundering checks are valid for 6 months from the date they are completed. If your purchase does not proceed and you make an offer on another property more than 6 months later, or if your checks are more than 6 months old when making a new offer, you will need to complete and pay for new checks. We use a partner supplier MoveButler, to carry out these checks on our behalf. They will contact you directly once your offer has been accepted (subject to contract) to complete the electronic verification process securely. There is a non-refundable charge of £30 + VAT per purchaser and per giftor for these checks.. This fee must be paid before we can issue a memorandum of sale to solicitors and is non-refundable under any circumstances. Ashtons receive a portion of this fee from MoveButler as compensation for facilitating these checks and our administrative role in the compliance process.

Wonderful Community
One Bedroom Apartment
Ground Floor
Outdoor Space
Allocated Parking
Share Of Freehold
EPC TBC

1 Bedroom   |   1 Bathroom   |   1 Reception

York Branch

For further details on this property please call our York office on
01904 659 222
Monday-Friday 9am - 5:30pm / Saturday 9am - 4pm / Sunday - 10am - 1pm (phone lines only)

Floorplans For Ouse Lea, Shipton Road, York

Book a viewing or enquire about this property

Simply fill out the form below or call us on:

01904 659 222 for York | 01904 799 333 for Acomb

* Mandatory fields

Recently viewed properties

Rightmove Zoopla On The Market Primelocation The Property Ombudsman The Association of Residential Letting Agents National Association of Estate Agents safeagent