Oakdale Road, York - £249,500 - Freehold

Located in the sought-after residential area of Clifton Moor, to the north of York, this charming two-bedroom semi-detached home is set on a surprisingly spacious plot. Owned and lovingly maintained by the same family for many years, the property is ready to move into and would make an ideal first home.

Oakdale Road enjoys a convenient position close to a range of local amenities, including shops, eateries, and regular bus services providing easy access to York city centre and the train station.

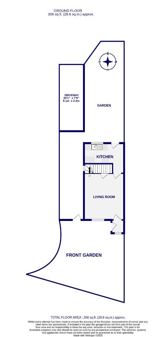
Inside, the home opens with a small entrance hall leading into a bright and welcoming reception room. Dual-aspect windows allow natural light to fill the space, and stairs lead to the first floor. At the rear, the kitchen features a range of fitted wall and base units along with ample space for white goods.

Upstairs, you’ll find two generously sized double bedrooms, one of which includes built-in storage, along with a modernised three-piece shower room.

Externally, the property enjoys gardens to three sides, with the rear garden benefitting from a desirable west-facing aspect—perfect for enjoying afternoon sun. A driveway to the rear provides off-street parking, and there is further potential at the front to create additional driveway space, subject to the usual consents.

Offered with no onward chain, early viewing is highly recommended.

*Please note this property has spray foam insulation in roof space*

Council Tax Band - B

ANTI-MONEY LAUNDERING COMPLIANCE
We are legally required to conduct Anti Money Laundering checks on all purchasers and sellers. These checks become mandatory when a seller accepts a purchaser's offer on a property. Anti-Money Laundering checks are valid for 6 months from the date they are completed. If your purchase does not proceed and you make an offer on another property more than 6 months later, or if your checks are more than 6 months old when making a new offer, you will need to complete and pay for new checks. We use a partner supplier MoveButler, to carry out these checks on our behalf. They will contact you directly once your offer has been accepted (subject to contract) to complete the electronic verification process securely. There is a non-refundable charge of £30 + VAT per purchaser for these checks. This fee must be paid before we can issue a memorandum of sale to solicitors and is non-refundable under any circumstances. Ashtons receive a portion of this fee from Movebutler as compensation for facilitating these checks and our administrative role in the compliance process.

Semi Detached House
Two Bedrooms
Ideal First Home
Well Presented Throughout
West Facing Rear Garden
Off Street Parking
No Onward Chain
EPC C

2 Bedrooms   |   1 Bathroom   |   1 Reception

York Branch

For further details on this property please call our York office on
01904 659 222
Monday-Friday 9am - 5:30pm / Saturday 9am - 4pm / Sunday - 10am - 1pm (phone lines only)

Floorplans For Oakdale Road, York Floorplans For Oakdale Road, York

Book a viewing or enquire about this property

Simply fill out the form below or call us on:

01904 659 222 for York | 01904 799 333 for Acomb

* Mandatory fields

Recently viewed properties

Rightmove Zoopla On The Market Primelocation The Property Ombudsman The Association of Residential Letting Agents National Association of Estate Agents safeagent