Basement Flat, The Crescent, York, YO24 1AW - Per Month £1,200pcm -

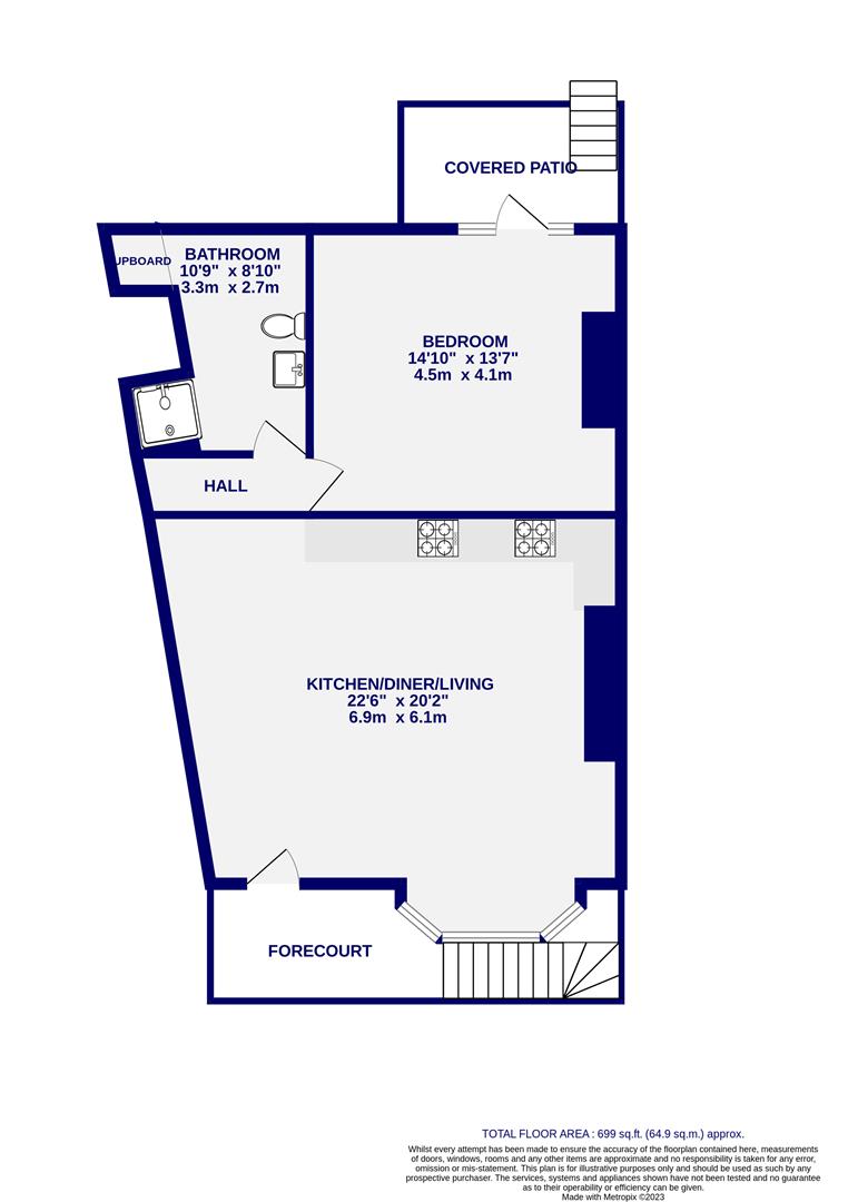
Recently renovated one bedroom basement flat set within a converted period building just minutes' walk from the city centre and train station. Offered furnished, the apartment has been finished to a high standard and briefly comprises; open plan living kitchen with bay fronted window, modern fitted kitchen with integrated fridge freezer, oven, hob, washer dryer and dishwasher; inner hallway through to a contemporary shower room with storage area; double bedroom with patio doors to terrace .

Wi-Fi included in the rent. Secure parking to rear available for an additional £100pcm

Available 17th June / Deposit £1300 / Council Tax Band A / 6 or 12 Month Tenancy / EPC Rating C

One Bedroom
Basement Flat
Offered Furnished
Close to City Centre
Private Terrace
Parking Available at additional cost
Available Mid June
6 or 12 Month Tenancies
Gas Central Heating
Council Tax Band A

1 Bedroom   |   1 Bathroom   |   1 Reception

Lettings Office

For further details on this property please call our Lettings office on
01904 731 404
Monday-Friday 9am - 5:30pm / Saturday 9am - 1pm / Sunday - Closed

Floorplans For Basement Flat, The Crescent, York, YO24 1AW

Book a viewing or enquire about this property

Simply fill out the form below or call us on:

01904 731 404 for York

* Mandatory fields

Recently viewed properties

Rightmove Zoopla On The Market Primelocation The Property Ombudsman The Association of Residential Letting Agents National Association of Estate Agents safeagent