New Lane, Holgate, York - £465,000 - Freehold

Situated in the sought after residential area of Holgate, just a short stroll from the popular West Bank Park, is this immaculately presented and extended four bedroom semi detached home. Offering stylish open plan living, versatile spaces ideal for home working, and a generous east facing garden, this property makes an ideal family home thanks to its proximity to York city centre, the train station, and a range of highly regarded schools.

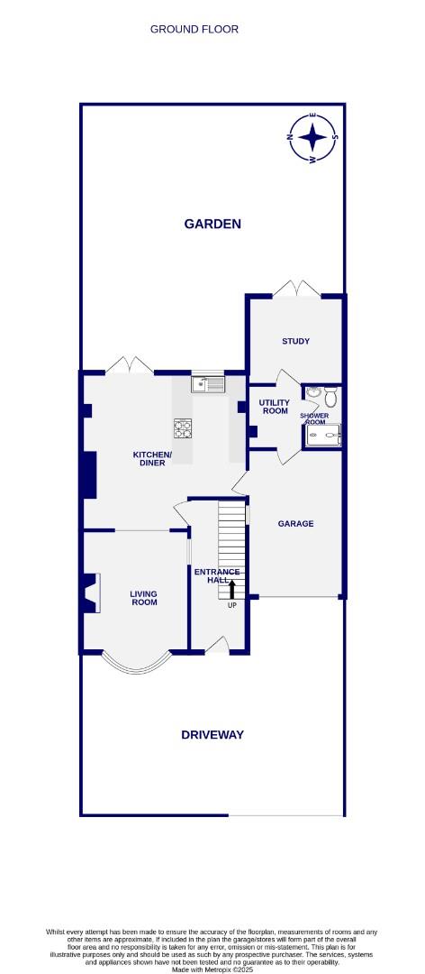
The property offers a bright entrance hall leading through to the rear of the home, which opens into a stunning open plan kitchen and dining area. This modern space features contemporary units, stylish worktops, a breakfast bar, and French doors opening onto the rear garden. To the front, the separate living room boasts a beautiful bay window and a feature fireplace.

As part of a thoughtful extension, the ground floor also includes a utility room behind the garage, a three piece shower room, and a dedicated study area, again with French doors overlooking the garden..

Upstairs, the home offers four well proportioned bedrooms, three of which are doubles. The master bedroom, located within the two storey side extension, benefits from a modern ensuite bathroom with twin sinks, while a further contemporary shower room serves the remaining bedrooms from the landing.

Externally, the property enjoys a generous east facing garden, mainly laid to lawn with patio seating areas and plenty of scope for further landscaping. To the front, a driveway provides off street parking.

Offered with no onward chain, and expected to attract strong interest, early viewing is highly recommended.

Council Tax Band C

Extended Semi Detached Home
Four Bedrooms
Three Bathrooms
Open Plan Living Area
East Facing Garden
Driveway Parking
No Onward Chain
EPC D

4 Bedrooms   |   3 Bathrooms   |   2 Receptions

York Branch

For further details on this property please call our York office on
01904 659 222
Monday-Friday 9am - 5:30pm / Saturday 9am - 4pm / Sunday - 10am - 1pm (phone lines only)

Floorplans For New Lane, Holgate, York Floorplans For New Lane, Holgate, York

Book a viewing or enquire about this property

Simply fill out the form below or call us on:

01904 659 222 for York | 01904 799 333 for Acomb

* Mandatory fields

Recently viewed properties

Rightmove Zoopla On The Market Primelocation The Property Ombudsman The Association of Residential Letting Agents National Association of Estate Agents safeagent