York Street, Dunnington, York - £275,000 - Freehold

Situated in the heart of the ever-popular village of Dunnington, this charming two-bedroom home enjoys a prime position on the village’s main street, placing a wealth of local amenities right on the doorstep. From convenient village shops to the highly regarded Pattacakes Bakery and the welcoming local pub.

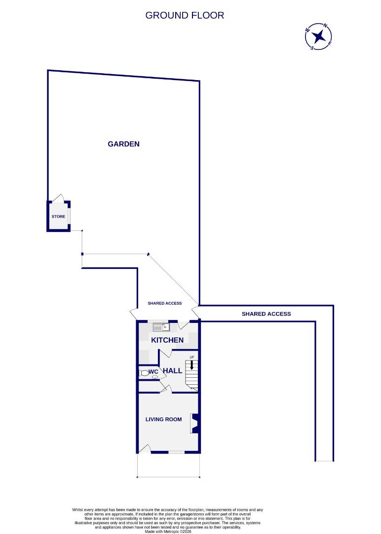
Internally, the property offers a characterful atmosphere throughout, having been beautifully maintained over the years while now presenting an exciting opportunity for modernisation. The ground floor begins with a generously sized lounge, where original beams add to the property’s charming cottage feel. This leads through to a spacious inner hallway, large enough to comfortably accommodate a dining table. Off the hallway there is a downstairs WC and a large storage cupboard. The kitchen is also well-proportioned, offering plenty of cupboard space and excellent potential for updating to suit modern tastes.

Upstairs, the property continues to impress with two bedrooms. The principal bedroom benefits from fitted wardrobes and excellent floor space, while the second bedroom provides a comfortable and versatile room ideal for guests, a home office or additional storage. The bathroom has been immaculately maintained, though buyers may wish to modernise it in time.

Externally, the home truly stands out thanks to its substantial garden. Rare for properties of this type, the outdoor space offers enormous potential, whether for landscaping, entertaining areas, or even the possibility of additional accommodation such as an annexe, subject to the necessary planning permissions. There is also a shared right of access across the rear for the row of four properties.

Offered to the market with no onward chain, this delightful property presents a fantastic opportunity for buyers seeking a characterful village home ready to be updated and made their own.

ANTI-MONEY LAUNDERING COMPLIANCE

We are legally required to conduct Anti Money Laundering checks on all purchasers, sellers, and giftors. These checks become mandatory when a seller accepts a purchaser's offer on a property. Anti-Money Laundering checks are valid for 6 months from the date they are completed. If your purchase does not proceed and you make an offer on another property more than 6 months later, or if your checks are more than 6 months old when making a new offer, you will need to complete and pay for new checks. We use a partner supplier MoveButler, to carry out these checks on our behalf. They will contact you directly once your offer has been accepted (subject to contract) to complete the electronic verification process securely. There is a non-refundable charge of £30 + VAT per purchaser and per giftor for these checks.. This fee must be paid before we can issue a memorandum of sale to solicitors and is non-refundable under any circumstances. Ashtons receive a portion of this fee from MoveButler as compensation for facilitating these checks and our administrative role in the compliance process.

Offered With No Onward Chain
Large Garden
Popular Village Location
Downstairs WC & Upstairs Bathroom
Exciting Opportunity To Update
On-Street Parking
Close To All Amenities
EPC - D

2 Bedrooms   |   2 Bathrooms   |   1 Reception

York Branch

For further details on this property please call our York office on
01904 659 222
Monday-Friday 9am - 5:30pm / Saturday 9am - 4pm / Sunday - 10am - 1pm (phone lines only)

Floorplans For York Street, Dunnington, York Floorplans For York Street, Dunnington, York

Book a viewing or enquire about this property

Simply fill out the form below or call us on:

01904 659 222 for York | 01904 799 333 for Acomb

* Mandatory fields

Recently viewed properties

Rightmove Zoopla On The Market Primelocation The Property Ombudsman The Association of Residential Letting Agents National Association of Estate Agents safeagent