Garnet Terrace, York, YO24 4XX - £1,250pcm -

A newly refurbished three bedroom mid fore courted terraced property conveniently located within walking distance of the city centre and railway station.

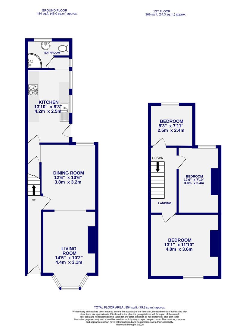
Offered for let on an unfurnished basis the property comprises of entrance hall, spacious open plan living / dining room. Kitchen with cooker, washing machine and fridge/freezer. Ground floor shower room. To the first floor is a double bedroom, a single and a third small single/study. Rear courtyard.

EPC C / Council Tax Band B / On street parking / Available now
Deposit £1350

FORE COURTED TERRACED HOUSE
THREE BEDROOMS
UNFURNISHED
NEWLY REFURBISHED
LOUNGE THROUGH DINER
KITCHEN
SHOWER ROOM
AVAILABLE NOW

3 Bedrooms   |   1 Bathroom   |   2 Receptions

Lettings Office

For further details on this property please call our Lettings office on
01904 731 404
Monday-Friday 9am - 5:30pm / Saturday 9am - 1pm / Sunday - Closed

Floorplans For Garnet Terrace, York, YO24 4XX

Book a viewing or enquire about this property

Simply fill out the form below or call us on:

01904 731 404 for York

* Mandatory fields

Recently viewed properties

Rightmove Zoopla On The Market Primelocation The Property Ombudsman The Association of Residential Letting Agents National Association of Estate Agents safeagent