Holgate Road, York - £170,000 - Leasehold

Ashtons are delighted to welcome to the market this beautifully presented one-bedroom apartment, situated in the ever-popular area of Holgate tucked away within St Catherine’s Court, the property is within walking distance of the train station, local amenities, shops, eateries and York’s historic city centre. Offering a turn-key finish, this stylish apartment is ideal for first-time buyers and investors.

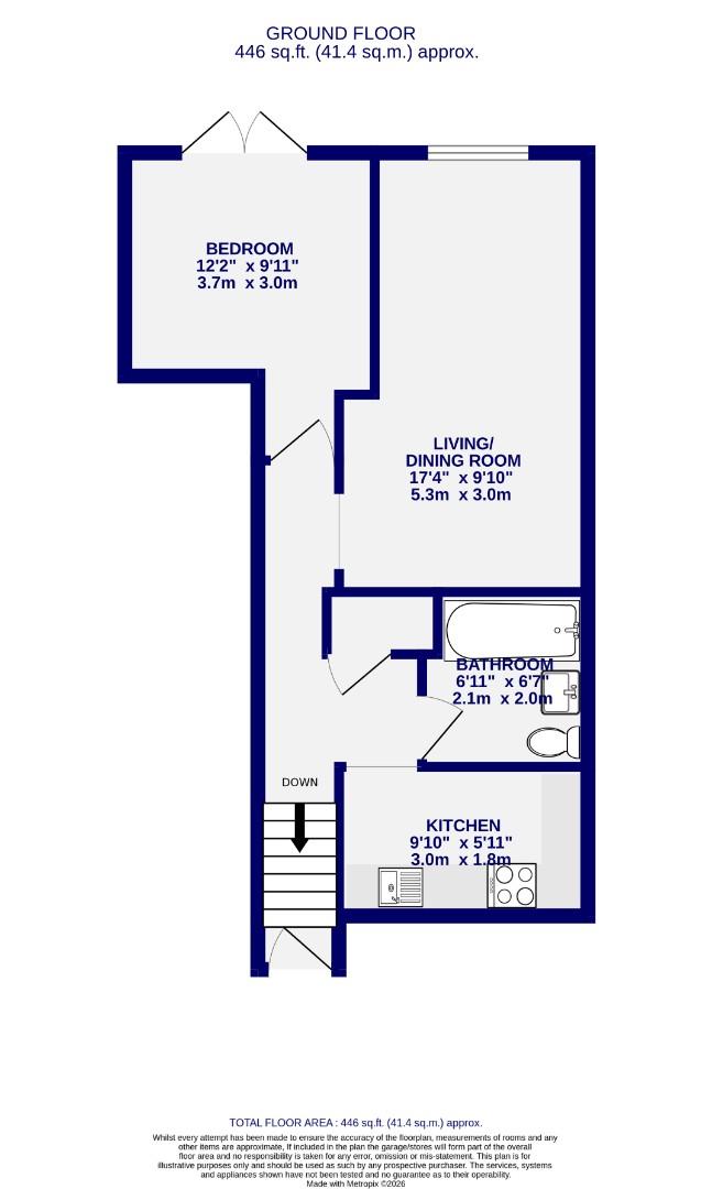
The property comprises an entrance hall leading to a newly fitted kitchen, finished in a warm green tone with both wall and base units, generous worktop space and pocket doors opening to a cleverly designed coffee station. or pantry. The living room offers ample space for both lounge and dining furniture, with a window set to the rear of the development allowing natural light to bathe the room and enhance the cosy ambience.

Also positioned to the rear is the double bedroom, featuring French doors opening onto a small patio area, allowing natural daylight to flood the space and creating a lovely indoor-outdoor feel.

The bathroom is finished in a boutique style, complete with a shower over the bath, and completes this impressive apartment.

Externally, the property benefits from an allocated parking space.

A wonderful opportunity to acquire a move-in ready home in a sought-after location. Early viewing is highly recommended to fully appreciate all that is on offer.

Leasehold
Length of lease- 972 Years remaining
Ground rent - £350 per annum
Ground rent review period- Fixed
Service Charge- £1.300 per annum

Council Tax Band - B

ANTI-MONEY LAUNDERING COMPLIANCE

We are legally required to conduct Anti Money Laundering checks on all purchasers and sellers. These checks become mandatory when a seller accepts a purchaser's offer on a property. Anti-Money Laundering checks are valid for 6 months from the date they are completed. If your purchase does not proceed and you make an offer on another property more than 6 months later, or if your checks are more than 6 months old when making a new offer, you will need to complete and pay for new checks. We use a partner supplier MoveButler, to carry out these checks on our behalf. They will contact you directly once your offer has been accepted (subject to contract) to complete the electronic verification process securely. There is a non-refundable charge of £30 + VAT per purchaser for these checks. This fee must be paid before we can issue a memorandum of sale to solicitors and is non-refundable under any circumstances. Ashtons receive a portion of this fee from Movebutler as compensation for facilitating these checks and our administrative role in the compliance process.

Stylish One Bedroom Apartment
Popular Holgate Location
Walking Distance To Station
Newly Fitted Contemporary Kitchen
Light And Airy Living Space
Turn Key Finish Throughout
Boutique Style Bathroom Suite
Allocated Parking Space
French Doors To Patio

1 Bedroom   |   1 Bathroom   |   1 Reception

York Branch

For further details on this property please call our York office on
01904 659 222
Monday-Friday 9am - 5:30pm / Saturday 9am - 4pm / Sunday - 10am - 1pm (phone lines only)

Floorplans For Holgate Road, York

Book a viewing or enquire about this property

Simply fill out the form below or call us on:

01904 659 222 for York | 01904 799 333 for Acomb

* Mandatory fields

Recently viewed properties

Rightmove Zoopla On The Market Primelocation The Property Ombudsman The Association of Residential Letting Agents National Association of Estate Agents safeagent