Carnoustie Close, Off Beckfield Lane, York - £475,000 - Freehold

A substantial four-bedroom detached family home, set within the ever-popular residential area of Acomb. Beautifully presented throughout and offered in true move-in condition, this impressive property is sure to appeal to a wide range of purchasers seeking generous living space in a convenient location. Acomb lies to the west of York and offers an excellent selection of local amenities, schools and transport links to the city centre. The property is also ideally positioned for easy access to the ring road, A64 and A1(M), making it perfect for commuters.

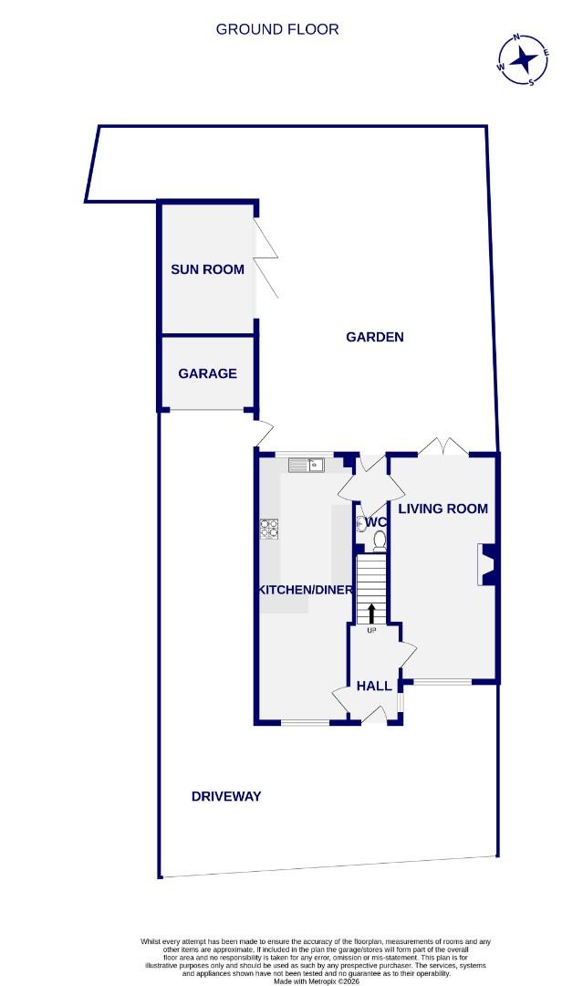
Internally, it is immediately apparent that this is a well-maintained and thoughtfully styled home. The spacious entrance hallway leads through to a bright and tastefully decorated living room that runs from front to back, creating a wonderful sense of space and flow. A feature fireplace provides a focal point, while French doors open directly onto the rear garden, allowing natural light to pour in.

To the right of the hallway is a modern dining kitchen, also extending from front to back. Dual-aspect windows ensure the room is light and airy, while the contemporary shaker-style kitchen offers a range of fitted units, integrated appliances, a breakfast bar and ample space for a dining table — perfectly suited for both everyday family life and entertaining. A downstairs WC is conveniently positioned off the hallway, opposite the rear access door.

To the first floor are four well-proportioned bedrooms. The principal bedroom benefits from a beautifully appointed en-suite shower room, and a stylish family bathroom serves the remaining bedrooms.

Externally, the property continues to impress, offering off-street parking for multiple vehicles, a detached garage and a generous rear garden. A particularly attractive addition is the garden room, providing versatile space ideal for use as a gym, home office or snug.

This is a superb family home in a highly regarded location, and early viewing is highly recommended.

ANTI-MONEY LAUNDERING COMPLIANCE

We are legally required to conduct Anti Money Laundering checks on all purchasers and sellers. These checks become mandatory when a seller accepts a purchaser's offer on a property. Anti-Money Laundering checks are valid for 6 months from the date they are completed. If your purchase does not proceed and you make an offer on another property more than 6 months later, or if your checks are more than 6 months old when making a new offer, you will need to complete and pay for new checks. We use a partner supplier MoveButler, to carry out these checks on our behalf. They will contact you directly once your offer has been accepted (subject to contract) to complete the electronic verification process securely. There is a non-refundable charge of £30 + VAT per purchaser for these checks. This fee must be paid before we can issue a memorandum of sale to solicitors and is non-refundable under any circumstances. Ashtons receive a portion of this fee from Movebutler as compensation for facilitating these checks and our administrative role in the compliance process.

Substantial Four Bedroom Detached Property
Beautifully Presented
Spacious Dual-Aspect Living Room
Modern Shaker-Style Dining Kitchen
Principal Bedroom With En-Suite
Plus Stylish Family Bathroom
Off-Street Parking
Detached Garage
Generous Rear Garden & Versatile Garden Room
EPC D

4 Bedrooms   |   2 Bathrooms   |   2 Receptions

York Branch

For further details on this property please call our York office on
01904 659 222
Monday-Friday 9am - 5:30pm / Saturday 9am - 4pm / Sunday - 10am - 1pm (phone lines only)

Floorplans For Carnoustie Close, Off Beckfield Lane, York Floorplans For Carnoustie Close, Off Beckfield Lane, York

Book a viewing or enquire about this property

Simply fill out the form below or call us on:

01904 659 222 for York | 01904 799 333 for Acomb

* Mandatory fields

Recently viewed properties

Rightmove Zoopla On The Market Primelocation The Property Ombudsman The Association of Residential Letting Agents National Association of Estate Agents safeagent