Newborough Street, York - £250,000 - Freehold

Located in the popular residential area of Burton Stone Lane, is this charming two-bedroom Victorian terrace offering great potential for further updates. Originally believed to have been a shop, the property features generous room sizes and flexible accommodation, making it ideal for a range of buyers. Conveniently situated within easy reach of York City Centre and the train station, this home offers both comfort and practicality.

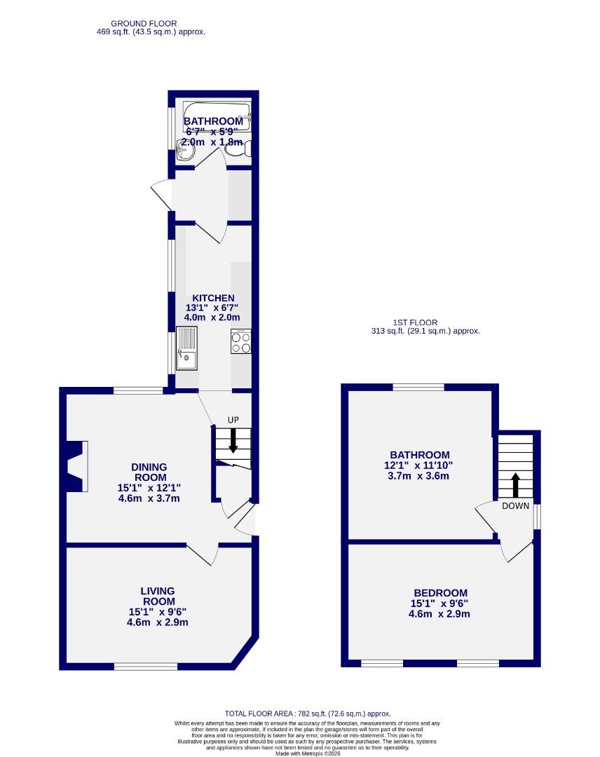
The property comprises two spacious reception rooms, a galley-style kitchen with ample wall and base units for storage, and a three-piece bathroom. Upstairs, there are two well-proportioned double bedrooms, both filled with natural light.

Externally, the home benefits from a west-facing courtyard garden, enclosed by traditional brick boundaries, providing a private outdoor space.

Offered with no onward chain, this property is sure to appeal to a variety of buyers. Early viewing is highly recommended to fully appreciate all it has to offer.

Council Tax Band B

A MODERNISED TWO BEDROOM END TERRACE

Period Victorian Terrace Property
Two Double Bedrooms
Convenient Location
Spacious Accommodation
Potential For Further Updates
Two Reception Rooms
No Onward Chain
EPC TBC

2 Bedrooms   |   1 Bathroom   |   2 Receptions

York Branch

For further details on this property please call our York office on
01904 659 222
Monday-Friday 9am - 5:30pm / Saturday 9am - 4pm / Sunday - 10am - 1pm (phone lines only)

Floorplans For Newborough Street, York Floorplans For Newborough Street, York

Book a viewing or enquire about this property

Simply fill out the form below or call us on:

01904 659 222 for York | 01904 799 333 for Acomb

* Mandatory fields

Recently viewed properties

Rightmove Zoopla On The Market Primelocation The Property Ombudsman The Association of Residential Letting Agents National Association of Estate Agents safeagent