Stamford Street East, York - £175,000 - Leasehold

Located on the ever-popular Leeman Road, within close proximity to York train station and the exciting York Central development, is this beautifully renovated one-bedroom first-floor apartment benefiting from its own single garage. Converted and finished to a high standard throughout, the property is ready to move into and offers an excellent opportunity for first-time buyers or investors alike. Offered for sale with no onward chain.

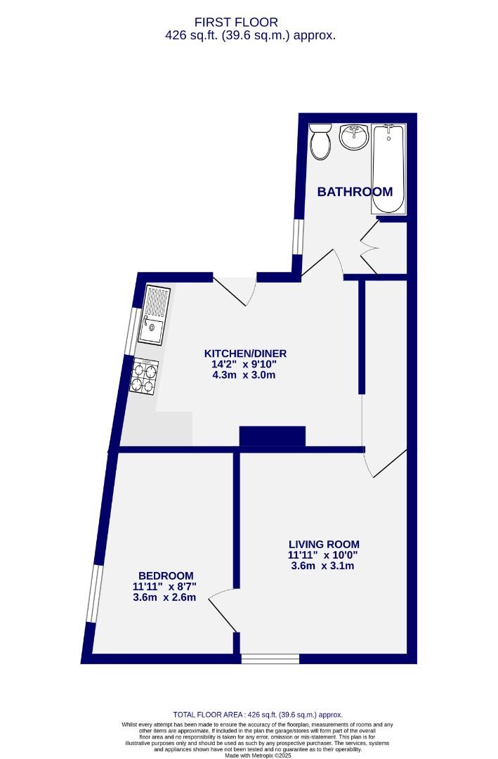
Accessed via its own private entrance, stairs lead to the first-floor accommodation where an entrance hall provides access to the main living spaces. The open-plan kitchen diner is fitted with a stylish range of navy wall and base units, offering ample storage and worktop space. Beyond, the spacious living room enjoys a pleasant northerly aspect and leads through to the well-proportioned double bedroom. Completing the internal accommodation is a modern three-piece bathroom, finished to a generous size and incorporating useful built-in storage, including a washer/dryer cupboard.

With its excellent location, high-quality finish, and no onward chain, early viewing is highly recommended.

Leasehold
Length of lease- 999 years from 27 September 2013
Ground rent - £0
Service Charge- £0 - 50% contribution to Buildings Insurance - £196.48 (2025/26)
Freehold will be transferred equally to purchasers

Council Tax Band- A

First Floor Apartment
One Double Bedroom
Kitchen Diner
Separate Living Room
Garage
Popular Residential Area
No Onward Chain
EPC - TBC

1 Bedroom   |   1 Bathroom   |   1 Reception

York Branch

For further details on this property please call our York office on
01904 659 222
Monday-Friday 9am - 5:30pm / Saturday 9am - 4pm / Sunday - 10am - 1pm (phone lines only)

Floorplans For Stamford Street East, York Floorplans For Stamford Street East, York

Book a viewing or enquire about this property

Simply fill out the form below or call us on:

01904 659 222 for York | 01904 799 333 for Acomb

* Mandatory fields

Recently viewed properties

Rightmove Zoopla On The Market Primelocation The Property Ombudsman The Association of Residential Letting Agents National Association of Estate Agents safeagent